78 Aralia Lane
Summary
|
Beds
4
|
Baths
3
|
Single Family
2,443 sq ft
|
Storeys
2
|
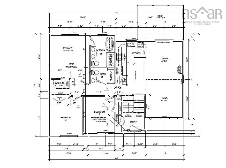
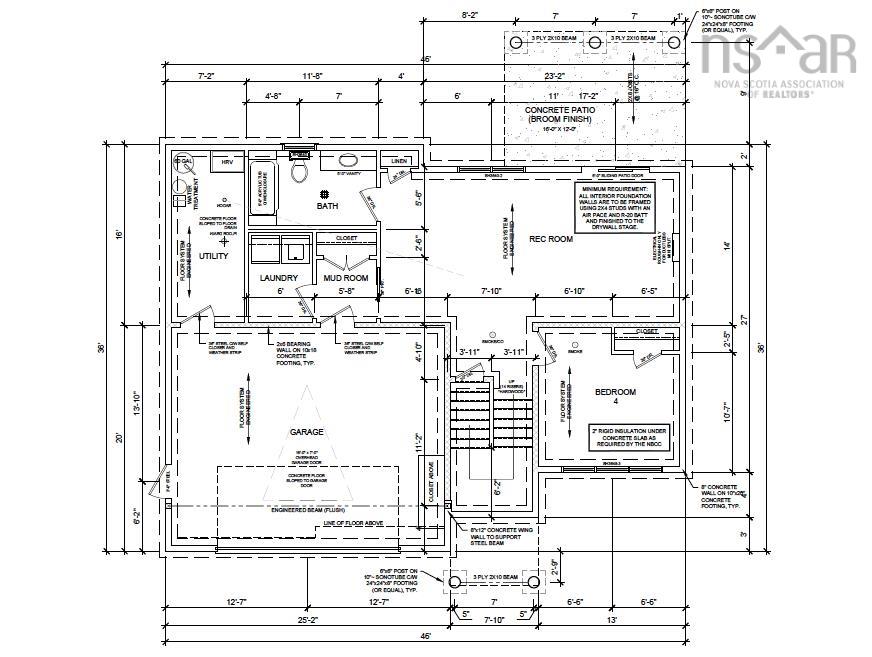
Welcome to 78 Aralia Lane. This 4 bedroom, 3 bathroom split entry is located in the beautiful subdivision of Westwood Hills. This home sits on a treelined 1.69 acres with 260 feet of water frontage on Bull Pond. The main floor consists of an open concept kitchen/dining/living space, 3 great sized bedrooms and two full baths, including a primary ensuite. The lower level level includes a 4th bedroom, large family room, a full bath, laundry room and access to the double car garage. Construction is complete and awaiting its new owner!
Property Details
| Property Style | Residential |
|---|---|
| Zoning | ER-1 |
| Building Style | Split Entry |
| Structure Style | Detached |
| Utilities | Cable, Electricity, High Speed Internet, Telephone |
| Roof | Asphalt Shingle |
| Flooring | Tile, Vinyl Plank |
| Basement | Fully Developed |
| Garage Type | Double |
| Foundation | Poured Concrete |
| Exterior | Vinyl |
| Heating Type | Baseboard, Heat Pump -Ducted |
| Fuel Type | Electric |
| Water Source | Drilled Well |
| Sewage | Septic |
| Land Features | Stream/Pond |
| Water Access | Access: Lake |
| Water Frontage | Access: Lake |
Measurements
| Main Living Area | 1,458 sq ft |
|---|---|
| Total Living Area | 2,443 sq ft |
| Water Frontage Measurements | 260 |
| Lot Size 1 | 73,616 sq ft |
| Total Lot Size | 73,616 sq ft |
| Building Dimensions | 34’ × 46’ |
| Property Size | 1 To 2.99 Acres |
| Floor | Room | Dimensions |
|---|---|---|
| Main Floor | Dining Room | 12’7” × 11’7” |
| Main Floor | Living Room | 13’ × 14’7” |
| Main Floor | Kitchen | 10’5” × 14’10” |
| Main Floor | Bath 1 | 5’1” × 8’1” |
| Main Floor | Bedroom | 10’11” × 12’2” |
| Main Floor | Bedroom | 10’11” × 12’5” |
| Main Floor | Bedroom | 13’4” × 14’10” |
| Main Floor | Ensuite Bath 1 | 8’1” × 11’7” |
| Lower Level | Rec Room | 25’1” × 12’8” |
| Lower Level | Bedroom | 11’1” × 9’1” |
| Lower Level | Bath 2 | 11’10” × 5’7” |
| Lower Level | Laundry | 11’10” × 8’5” |
Features
- Garage
Location Details
| County | Halifax |
|---|---|
| District | Kingswood, Haliburton Hills, Hammonds Pl. |
| Schools |
|

















































